Office Hours
Coming soon...
Description
Welcome to Alder Creek Commons! Alder Creek Commons is a newly renovated affordable housing community in Nehalem, OR that offers affordable studio, 1, and 2 bedroom homes. Alder Creek Commons is an income restricted property designed for seniors and disabled individuals. All applicants must meet these requirements to qualify for homes at Alder Creek Commons.This newly renovated community features modern floor plans equipped with an electric range, refrigerator, and spacious closets. All residents have access to storage space, community room, an on-site laundry facility, and on-site parking. Contact our management team at (971) 324-5020 or aldercreek@cascade-management.com to join our interested party list and be the first to hear about updates about Alder Creek Commons.
2025 Income Limits:
| Persons | 1 | 2 | 3 | 4 | 5 | 6 | 7 | 8 |
| 30% AMI | $17,550 | $20,040 | $22,560 | $25,050 | $27,060 | $29,070 | $31,080 | $33,090 |
| 50% AMI | $29,250 | $33,400 | $37,600 | $41,750 | $45,100 | $48,450 | $51,800 | $55,150 |
| 60% AMI | $35,100 | $40,080 | $45,120 | $50,100 | $54,120 | $58,140 | $62,160 | $66,180 |
Interested in Applying?
*To fill in the application electronically, download the file and save to your device. Once saved, the application can be filled digitally or printed to be filled out by hand.
We are pledged to the letter and spirit of U.S. policy for the achievement of equal housing opportunity throughout the Nation. We encourage and support an affirmative advertising and marketing program in which there are no barriers to obtaining housing because of race, color, religion, sex, handicap, familial status, or national origin.
| Name | Rent* | Bed /Bath | SQ. Feet** | Layout | Available |
|---|---|---|---|---|---|
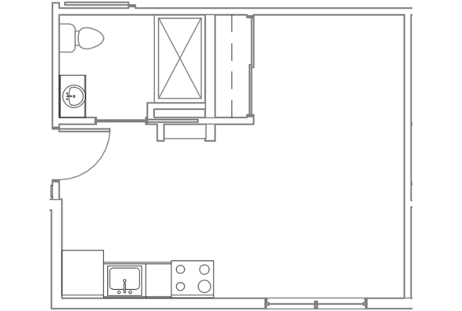
| Studio | $438 - $731 | 0 bed / 1 bath | 285 - 289 Sq. Ft. | Plan Layout |
|
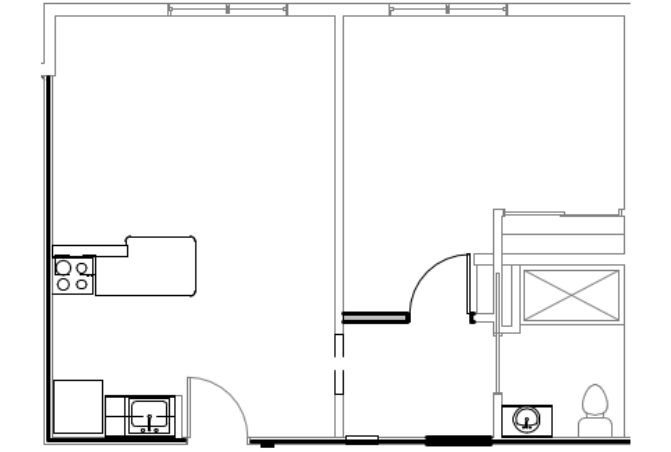
| 1 Bedroom | $469 - $783 | 1 bed / 1 bath | 450 - 608 Sq. Ft. | Plan Layout |
|
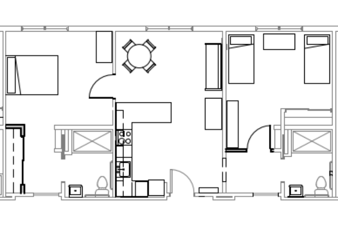
| 2 Bedroom | $564 - $940 | 2 bed / 2 bath | 887 Sq. Ft. | Plan Layout |
|
By Floorplan
Studio
1 Bedroom
2 Bedroom
By Price
$438 - $731
$469 - $783
$564 - $940
By Square Feet
285 - 289 sq feet
450 - 608 sq feet
887 sq feet

- 285 - 289
- $438 - $731
Neighborhood Amenities
- Banking
- Gas Stations
- Grocery Stores
- Post Office
- Restaurants
- Shopping
Apartment Amenities
- Electric Range
- Large Closets
- Refrigerator
- Storage Space
Pets
- No pets allowed
Housing Type
- 30% AMI
- 50% AMI
- 60% AMI
- Disability
- Seniors
Availability
- New Construction
- Units Available
- Wait List Open
Community Amenities
- Community Room
- On-site Laundry Facilities
Parking
- On-site Parking

