Description
Welcome to Nine Peaks! Nine Peaks is a brand new affordable housing community in Bend, OR that features 1, 2, and 3 bedroom homes. Nine Peaks is an income restricted community. All applicants must meet these income limits to qualify for these affordable apartments in Bend.
All homes at Nine Peaks offer modern features and amenities. Each brand-new residence includes air conditioning, a refrigerator, electric range, garbage disposal, dishwasher, patio/balcony access, storage space, and water, sewer, and garbage paid. In-unit washers and dryers are also available in select units. Nine Peaks' community also features a community room, on-site laundry facility, secured access, and on-site parking. We’re excited to open our doors to the Bend community. Applications will be accepted starting 4/17/2026. Homes will be awarded to applicants via a lottery process. Contact our team for more details.
2025 Income Limits:
| Persons | 1 | 2 | 3 | 4 | 5 | 6 | 7 | 8 |
| 50% AMI | $40,000 | $45,750 | $51,400 | $57,150 | $61,750 | $66,300 | $70,900 | $75,450 |
We are pledged to the letter and spirit of U.S. policy for the achievement of equal housing opportunity throughout the Nation. We encourage and support an affirmative advertising and marketing program in which there are no barriers to obtaining housing because of race, color, religion, sex, handicap, familial status, or national origin.
| Name | Rent* | Bed /Bath | SQ. Feet** | Layout | Available |
|---|---|---|---|---|---|
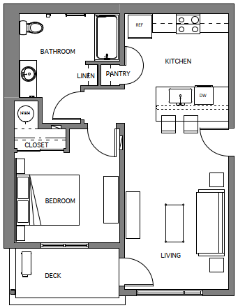
| 1 Bedroom | $915 - $915 | 1 bed / 1 bath | 664 Sq. Ft. | Plan Layout |
|
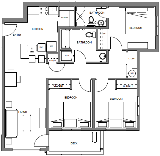
| 2 Bedroom | $1020 - $1020 | 2 bed / 1 bath | 909 Sq. Ft. | Plan Layout |
|
| 3 Bedroom | $1150 - $1150 | 3 bed / 2 bath | 1,158 Sq. Ft. | Plan Layout |
|
By Floorplan
1 Bedroom
2 Bedroom
3 Bedroom
By Price
$915 - $915
$1020 - $1020
$1150 - $1150
By Square Feet
664 sq feet
909 sq feet
1,158 sq feet

- 664
- $915 - $915
Neighborhood Amenities
- Banking
- Gas Stations
- Grocery Stores
- Post Office
- Restaurants
- Schools
- Shopping
Apartment Amenities
- Air Conditioning
- Cable TV Access
- Dishwasher
- Electric Range
- Garbage Disposal
- Heat (Electric)
- Microwave
- Oven
- Patio/ Balcony
- Refrigerator
- Storage Space
- Stove
- Tub/Shower
- Vinyl Flooring
- Washer & Dryer in Select Units
- Water, Sewer & Garbage Paid
Pets
- No pets allowed
Housing Type
- 50% AMI
- Affordable
- Section 8
Availability
- New Construction
- Units Available
Community Amenities
- Camera Surveillance
- Community Room
- On-site Laundry Facilities
- Playground
- Secure Access
Parking
- On-site Parking
Additional Fees
- Application Fee: $42

